quienes somos
naves industriales
locales comerciales
contacto
dónde estamos
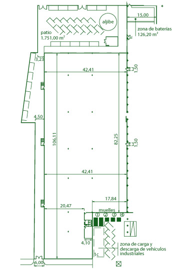
La Estación 1 - Detalle Módulo 4
ocupado
4.173 m
2
de nave en planta.
Plano de situación
Resumen de Superficies
Uso industrial p. baja:
4.173,51 m
2
Total superficie:
4.173,51 m
2
Número de muelles:
4
<<< atrás
© Consultas & Asesoramientos, S.A. 2011 - Optimizado 1024x768, Explorer 6.0 o superior
- condiciones de uso
|
política de privacidad -