quienes somos
naves industriales
locales comerciales
contacto
dónde estamos
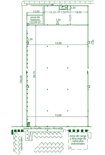
La Estación 1 - Detalle Módulo 3
libre
5.575 m2 de nave en planta, dividida su vez en dos espacios por exigencias de sectorización de incendios (626 y 4949). Dispone en el interior del mismo almacén de un pabellón de aseos de cuatro unidades para hombres y dos para mujeres. No tiene oficinas.

Plano de situación
Resumen de Superficies
Uso industrial p. baja:
5.575,49 m2
Total superficie:
5.575,49 m2
Número de muelles:
0
© Consultas & Asesoramientos, S.A. 2011 - Optimizado 1024x768, Explorer 6.0 o superior - condiciones de uso | política de privacidad -