quienes somos
naves industriales
locales comerciales
contacto
dónde estamos
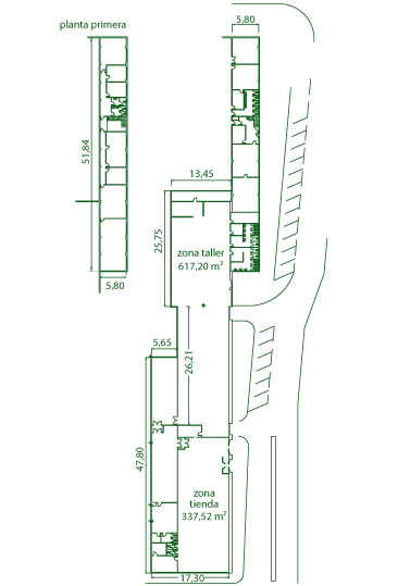
La Estación 1 - Detalle Módulo 1
ocupado
1.375 m
2
de uso industrial.
295 m
2
de entreplanta.
Plano de situación
Resumen de Superficies
Uso industrial p. baja:
1.375,00 m
2
Uso oficinas 1ª planta:
295,00 m
2
Total superficie:
1.670 ,00 m
2
Número de muelles:
0
<<< atrás
© Consultas & Asesoramientos, S.A. 2011 - Optimizado 1024x768, Explorer 6.0 o superior
- condiciones de uso
|
política de privacidad -