quienes somos
naves industriales
locales comerciales
contacto
dónde estamos
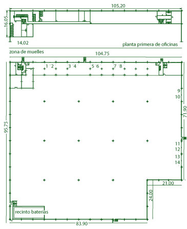
La Atalaya 2 - Detalle Módulo 1
libre
9.586,26 m
2
en planta.
961,01 m
2
en entreplanta (56 constr. en 2003)
Plano de situación
Resumen de Superficies
Uso industrial p. baja:
9.586,26 m
2
Uso oficinas 1ª planta:
961,01 m
2
Total superficie:
10.547,27 m
2
Número de muelles:
14
<<< atrás
© Consultas & Asesoramientos, S.A. 2011 - Optimizado 1024x768, Explorer 6.0 o superior
- condiciones de uso
|
política de privacidad -