quienes somos
naves industriales
locales comerciales
contacto
dónde estamos
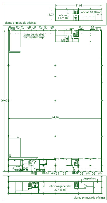
La Atalaya 1 - Detalle Módulo 2
ocupado

6.172 m2 en planta.
512 m2 en entreplanta fachada M-506.
283 m2 en entreplanta fachada patio interior.

Plano de situación
Resumen de Superficies
Uso industrial p. baja:
6.172,80 m2
Uso oficinas 1ª planta:
779,40 m2
Total superficie:
6.942,20 m2
Número de muelles:
17
© Consultas & Asesoramientos, S.A. 2011 - Optimizado 1024x768, Explorer 6.0 o superior - condiciones de uso | política de privacidad -