quienes somos
naves industriales
locales comerciales
contacto
dónde estamos
La Atalaya 1

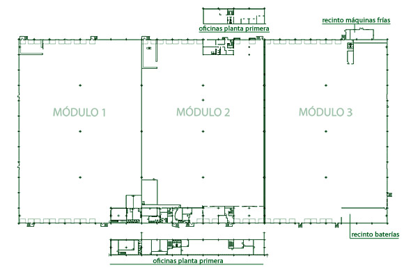
Nave rectangular de 18.432 m2 en planta (192 x 96), más 923 m2 en entreplanta y 10,5 metros de altura, lo que permite una altura de almace-namiento de 9,5 m.

Está situada en el Polígono Mateu Cromo, con fachada a M 506 -Km. 20,800 (hoy Km. 25).

Se encuentra dividida en 3 módulos de unos 6.100 m2 (64 x 96) cada uno.

Módulo I > 6.145,00 m2 en planta, y 128,00 m2 en entreplanta. Dispone de red de rociadores auto-máticos ESFR.

Módulo II > 6.172,80 m2 en planta, y 512,00 m2 en entreplanta en fachada M-506, más 283,00 m2 en fachada patio interior.

Módulo III > 6.145,00 m2 en planta, y no tiene entreplanta.

Plano de situación

La nave se encuentra en un recinto cerrado, junto a la nave La Atalaya 2, con vigilancia 24 horas. Compartiendo, del mismo modo, los servicios de limpieza y las dotaciones para extinción de incendios (aljibe y grupo de bombeo). Los gastos estimados de estos servicios ascienden a 0,50 € m2/mes, que se facturan mensualmente a los usuarios en función de los metros cuadrados ocupados por cada uno de ellos.

Igualmente, la empresa tiene contrato de suministro de agua potable con el Canal de Isabel II y de suministro de energía con Iberdrola.

Según el Real Decreto 2267/2004, por el que se aprueba el Reglamento de seguridad contra incendios en los establecimientos industriales, el edificio está considerado como tres módulos independientes Tipo B.

© Consultas & Asesoramientos, S.A. 2011 - Optimizado 1024x768, Explorer 6.0 o superior - condiciones de uso | política de privacidad -